方案展示
設計說明
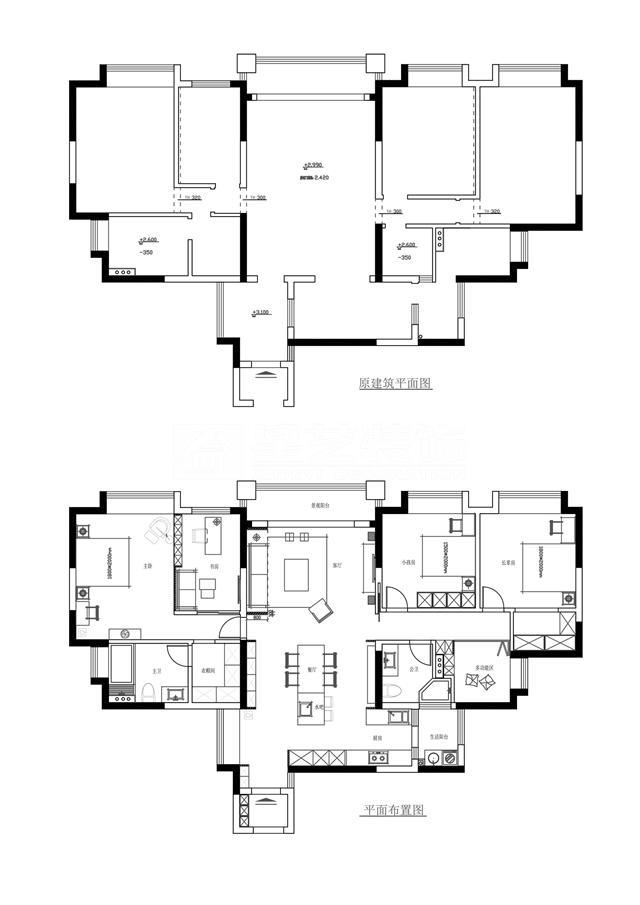
原有的戶型客廳、餐廳比例很不合理,通過戶型改造,客廳、餐廳及廚房空間動線更合理、空間更寬敞了,簡約的設計讓家更加放松、自在、舒適。
[展開]-
星藝設計師的其它設計案例
-
簡約風格的其它設計案例
關注我們
分享到
微信

立即預約
在線咨詢
在線客服
公安部備案號 44010602004978號