380㎡意式輕奢,隱棲山林四季,勾勒如詩生活!
2022-03-08 12:00:00
序 ? 風格融合
Fusion of styles
繁花煮酒,春水煎茶;
畫一城煙雨迷離,鋪陳青磚黛瓦;
兼具品位與溫暖的家是對家人最長情的陪伴。
而意式與現代格調的寧靜淡雅,
猶如暖陽注入心扉,融化蒼涼殘照,布散烈烈朝暉。
案例/效果圖
Case/rendering

居 ? 隱棲林間
Hidden Forest
雖然在負一層,但客廳依舊寬敞明亮,
簡單的空間蘊含寧靜雅致的氛圍,猶如身處叢林深處,恬淡美好。
地毯圖案與沙發造型相得益彰;
乍看,似在宣紙之上潑墨成畫,勾勒如詩生活。

綠植裝飾貫穿兩層客廳的背景;
精致美觀的同時也充滿唯美浪漫色彩;
家具上則偏向精致樸素,卻也不乏率性與典雅,
其氣質韻味如美酒般越品越醇厚。

歸 ? 光與影
Light and shadow
胡桃木是意式輕奢較為偏愛得顏色,沉穩不失活力;
從玄關處用不同深淺的胡桃木配合黑白灰,
陽光從落地窗投射進來,光影錯落,線條干練;
構筑出歲月靜好的和諧時光。

負一層的玄關利用空間與光線優勢;
打造出充滿浪漫溫馨的小角落,頓時褪去一身疲憊;
即使在寒冬臘月,也能感到被一股暖流融化心中寒意。

聚 ? 樂盡天真
Happy as a Lark
休閑區設置了臺球桌與吧臺,與三五好友推杯換盞;
或與家人閑話家常,傾訴衷腸;
或靜觀窗外的風云變幻,看著草木隨風搖曳,低聲輕語;
品味自然帶給人間的“小脾氣”,也別有一般風趣。
餐廳與客廳相鄰,墨綠色絨質餐椅搭配胡桃木餐桌,
含蓄高級,結合一束獨特燈具,頓顯藝術性與美感;
開放式廚房能看見家人忙碌的身影,孩子的調皮瞬間,
這不就是專屬于家的煙火氣息嗎?
著名作家王蒙說:一個人的實力絕大部分來自學習。
學無涯,思無涯,其樂亦無涯;
敞亮舒適的學習區給生活帶來高質量體驗,
閑時看一本書,或與孩子共同進步,讓知識的力量感染每一個人。


藏 ? 星河入夢
And the stars will fall asleep
臥室部分以白色為主,在視覺上拓寬空間,通透明亮;
每個房間都用不同顏色的裝飾做點綴,
讓屋內色彩明亮而不顯華麗;
舒適的材質紋理創造最佳的休憩環境,攜著美夢進入新的一天。
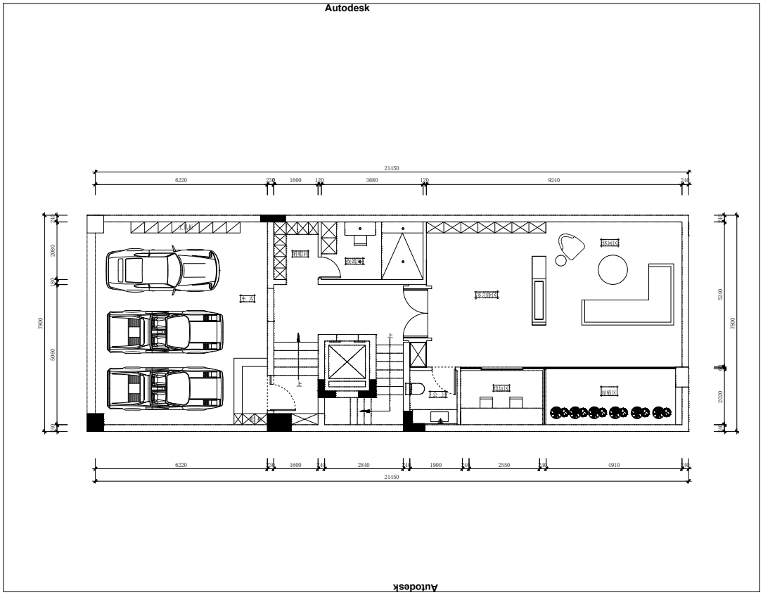
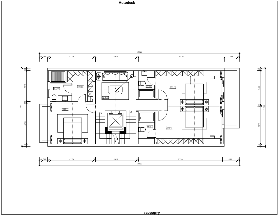
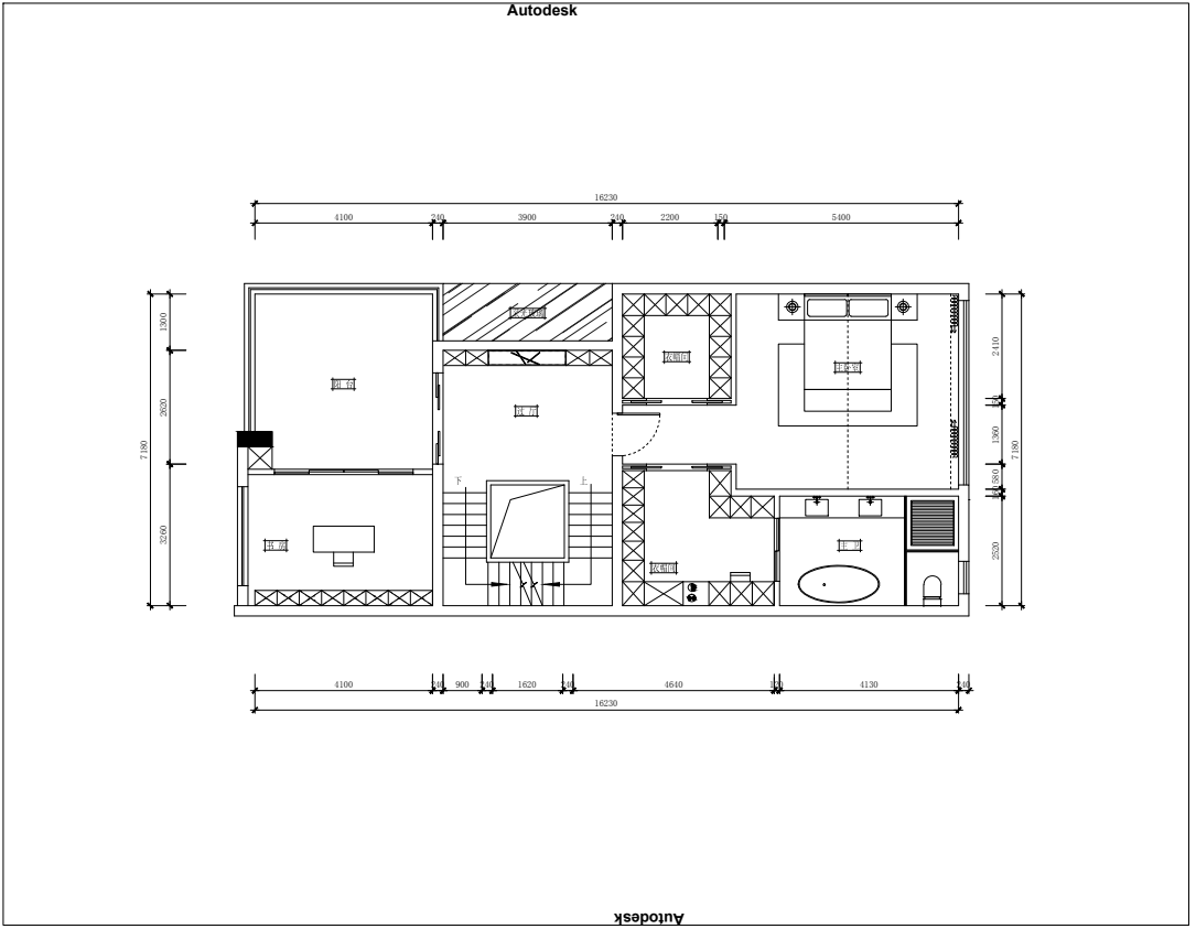
平面圖
Floor Plan



主案設計丨徐德成
Main case design/xu de cheng
項目面積丨380㎡
Project area/380㎡
風格傾向丨現代意式輕奢
Stylistic tendency/Italian luxury
項目地址丨雅居樂 劍橋郡
Project address/ya le ju
關注我們
在線客服
公安部備案號 44010602004978號